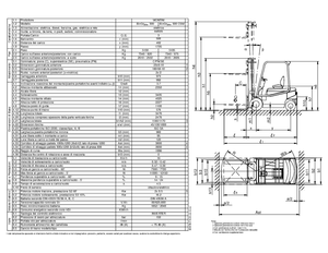
Foaie de date pentru Montini Bingo plus N 300 CSM

Model 2009-2016 Europe IT

Această foaie de date (PDF) va fi trimisă în Inbox-ul tău după ce ne vei furniza adresa ta de e-mail.

  • Foaie de date originală de la producător
  • Mai multe informații
  • Specificații detaliate

*Termeni și condiții

Se aplică politica de confidențialitate a LECTURA GmbH care conține, de asemenea, informații suplimentare legate de posibilitățile de corectare, ștergere și blocare a datelor mele.

Stivuitoare frontale electrice Montini Bingo plus N 300 CSM



Afișează specificații detaliate